Diseño de casa habitacion
hola amigos de steemit, en esta ocasión quisiera mostrarles algunas imágenes del diseño de esta casa habitación, en la cual el cliente nos pedía que la casa se viera diferente de las casas aledañas, y la única restricción que teníamos en cuanto a fachada era los materiales y colores, solo se podían agregar canteras o piedras en tono chocolate y pintura blanca, por lo que optamos por recubrir el volumen principal de cantera blanca en lajas, y toda la demás fachada en blanco.
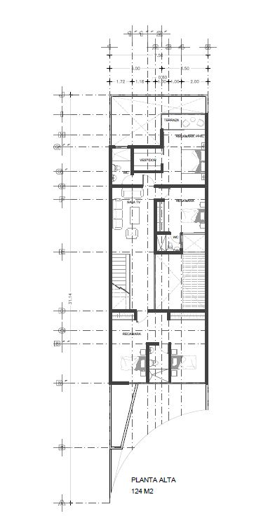
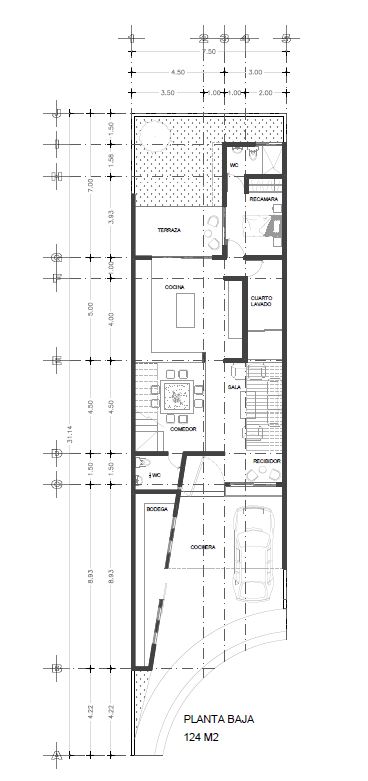
en cuanto a los requerimientos de espacios, el cliente nos pedía en planta baja: sala, comedor, cocina, recamara, cuarto de lavado y patio en planta baja. en planta alta quería recamaras con baño propio y sala de TV. Analizando sus necesidades ya que el cliente se dedica a renta de equipo de sonido, también necesitaba una recepción u oficina para recibir a los clientes. nuestra propuesta de diseño quedo de la siguiente forma:
Planta baja:
- Cochera para autos
- sala de estar
- Comedor
- Cocina
- cuarto de lavado
- Recamara con baño completo
- 1/2 baño
- bodega
- jardin
Planta alta:
- recamara principal con vestidor, baño completo y terraza
- recamara sencilla con baño completo
- recamara doble con baño completo
- sala de tv
en cuanto a los interiores, hicimos incapie en el manejo de la luz y procuramos que todas las areas de la casa estuvieran bien iluminadas, esto lo logramos con tragaluces y muros de cristal.
el cliente quedo satisfecho con el diseño, esperamos empezar obra el mes que entra.
en estos momentos estoy subiendo los recorridos virtuales de esta casa para que los puedan ver en mi canal de dtube.
por favor comenten y hagan criticas a nuestro trabajo. saludos.
