¡HICE UN RESTAURANTE TEMÁTICO!- CORALINE
¡Hola a todos! El día de hoy quiero contarles que he hecho un restaurante temático y he elegido la película de Coraline para hacerlo.
Imagen de: https://www.gallerynucleus.com/detail/21698/
Esta fue mi tarea del 2do parcial, a lo que se le llama ''PIA'' que significa Producto Integrador de Arquitectura, este proyecto se realiza en 3 meses (o un poco menos) y es necesario cumplir con todos los lineamientos y requisitos que te piden para así lograr hacer un buen proyecto.
Lo primero que se debe de hacer es conseguir un terreno, el que nosotros elegimos fue de 780 m2 y se encontraba cerca de varias escuelas, por lo que me decidí a hacerlo de Coraline ya que es de mis películas favoritas y había mucho que podía utilizar de allí. Se debe analizar el sitio, conocer como es el tráfico allí, cuales son las vistas agradables, las vistas desagradables, los ruidos, etc.
Después se investiga al usuario, la edad que tratan, cuales son sus necesidades, sus actividades, etc. tanto del cliente como del empleado, así podemos hacer un ''Programa de necesidades''
Teniendo el programa de necesidades podemos hacer nuestro programa arquitectónico que nos ayudará a saber que áreas se encontrarán en nuestro restaurante:
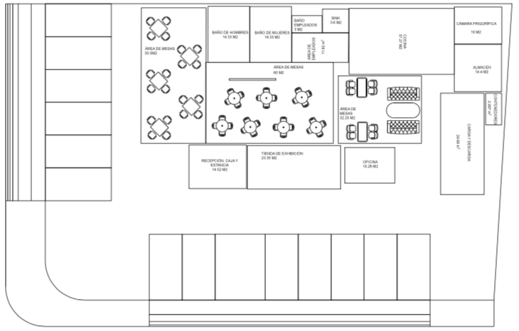
Al tener ya listo nuestro programa arquitectónico lo siguiente es hacer diagramas arquitectónicos, este sirve para identificar que área conectará con otra área y le da un orden y organización a nuestras ideas:
Después de realizar nuestro diagrama es el momento de lo complicado, hacer un análisis de áreas, este consiste en colocar las medidas de ancho y largo de nuestro mobiliario y la cantidad que pondremos, para saber cuanto espacio se necesitará, obviamente incluyendo un espacio de circulación obligatorio dependiendo de cada área.
Un ejemplo:
Al conocer el espacio que necesitaremos lo que sigue es realizar partidos, los partidos son una manera de organizar tus áreas tomando en cuenta sus medidas y jugar con las posiciones, siempre buscando la forma más lógica, accesible y rápida de acomodar nuestras áreas:
Cómo pueden ver, existen 3 áreas de mesas, cada una en diferente nivel de piso, pues en la película de Coraline existen 3 diferentes ''áreas'' que vendrían siendo...
1- Circo:
2- Comedor de Coraline:
3- ''Teatro'' y habitación de Miriam y April:
Entonces lo que yo quería era dividir esos 3 lugares en mi restaurante, además de utilizar detalles y colores del baño de coraline para el sanitario de los clientes:
Lo siguiente fue realizar borradores de mis plantas arquitectónicas, este es durante el proceso:
El proceso de mi planta de conjunto (una planta de conjunto es como se ve tu obra pero con su techumbre) en mi caso la que yo elegí fue de dos aguas pues me inspiré en un ventanal de la película:
Proceso del corte longitudinal (es el que atraviesa el lugar que más quieres destacar de tu proyecto, en mi caso fueron las 3 áreas divididas):
Y esta fue mi entrega:
Planta arquitectónica:
Planta de conjunto:
Elevaciones:
Cortes:
Perspectiva:
Maqueta:
Como pueden notar, quise hacer una idea abstracta a lo que es la casa original pero utilizando algunos colores alusivos, también como mencionaba anteriormente, un elemento influyente en mi proyecto fue este:
Otro elemento que quería incluir eran los árboles, estos para ser más específica:
Así que propuse árboles como este:
También realice PIAS de otras materiales pues algunas se unen y se debe realizar un trabajo depende lo aprendido en cada materia, estos son algunos de los otros trabajos:
Componentes del espacio urbano (trata de analizar el sitio, su uso de suelo, flora, fauna, temperaturas, clima, etc. del terreno y su alrededor)
Arquitectura e Identidad (justificar, identificar materiales, antecedentes, elementos del proyecto, etc.)
Geometría en la arquitectura (identificar los cuerpos, formas, cierres, diseño estructural, fuerzas y cualidades del proyecto)
En fin, todo eso en menos de 3 meses y la mayoría con el mismo día de entrega (ahora entenderán el porque no tengo ni un poco de tiempo, nisiquiera para tomarle foto a mis procesos, siempre hasta el final cuando ya me quite el peso de encima jajaja).
Espero que les haya gustado, si es así voten y dejen un comentario para saber si postear el proyecto que hice de una casa-habitación! Nos vemos en el siguiente post, gracias por leerme.

























Que trabajo tan interesante y complejo, requiere de muchas habilidades.
¡Gracias marena! Pues poco a poco se van aprendiendo, todo es práctica. Saludos <3
muy hermosa igualque tu, me gusta tu post, espero que siga adelante.. beso se cuidad tiene mi apoyo.
Mil gracias!!!