Planos de una casa #08 de 8,5m x 10m.


¡Hola amigos de Steemit! Ahora les comparto, los planos de una casa de 8,5m. x 10m. De 2 pisos+azotea. Área=85m².

Tiene un estacionamiento, el jardín, la sala, el comedor, la cocina, el estudio, la lavandería, el S.S. y la escalera.

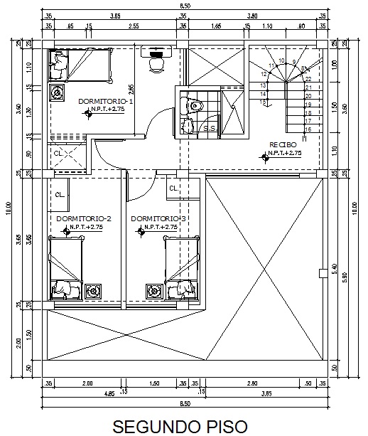
Hay 3 dormitorios, el servicio sanitario, el recibo y la escalera.

Llegando a la azotea se puede ver el recibo, el tendal, la lavandería, el S.S. y el dormitorio.
This is pretty great really you did very well job.
Thank you! @forexmaster