House Design #30
Hi Steemians,
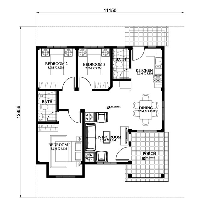
Check this out! Our house design #30 is consist of 3 bedrooms, 2 bathrooms.
There's a porch for you where you can sit and relax. Entering the door, you will see first, the living room, then the dining and kitchen. And next to it is a bathroom. Going to the left side of the house, there's a bedroom with its own bathroom and another 2 bedrooms.




Good job! Thanks to @cj23 you have planted 0.05 tree to save Abongphen Highland Forest in Cameroon. Help me to plant 1,000,000 trees and share my Steem Power to the others. Selfvoting is prohibited, but that should be the reason to spread the world to protect our precious environment. Check out profile of our conservation association @kedjom-keku and the founder/coordinator @martin.mikes to get more information about our conservation program. My current SP is 14516.65. Help me to plant more trees with your delegated SP.
Thanks a lot,
your @treeplanter
www.kedjom-keku.com
This post has received a 3.53% upvote from @lovejuice thanks to @anonteamph00001. They love you, so does Aggroed. Please be sure to vote for Witnesses at https://steemit.com/~witnesses.
This post has received a 1.67 % upvote from @boomerang thanks to: @anonteamph00001
You got a 0.73% upvote from @postpromoter courtesy of @anonteamph00001!
Want to promote your posts too? Check out the Steem Bot Tracker website for more info. If you would like to support the development of @postpromoter and the bot tracker please vote for @yabapmatt for witness!
This post has received a 0.56 % upvote from @booster thanks to: @anonteamph00001.
This post has received gratitude of 0.54 % from @appreciator thanks to: @anonteamph00001.
Congratulations! This post has been upvoted from the communal account, @minnowsupport, by anonteamph00001 from the Minnow Support Project. It's a witness project run by aggroed, ausbitbank, teamsteem, theprophet0, someguy123, neoxian, followbtcnews, and netuoso. The goal is to help Steemit grow by supporting Minnows. Please find us at the Peace, Abundance, and Liberty Network (PALnet) Discord Channel. It's a completely public and open space to all members of the Steemit community who voluntarily choose to be there.
If you would like to delegate to the Minnow Support Project you can do so by clicking on the following links: 50SP, 100SP, 250SP, 500SP, 1000SP, 5000SP.
Be sure to leave at least 50SP undelegated on your account.
Try to organizing one’s craft room can be an extremely personal, and in some cases, overwhelming and painful undertaking with structural glazing ltd https://glassstructureslimited.com/ . Have a passion for paper crafts, or, and perhaps, the most dangerous cocktail of clutter-creating makers, the pan-crafter.