受《盗墓笔记》启迪的地下车库设计初尝试[1]
【碎碎念】
几年前看完八部九本的《盗墓笔记》后,有个毛病,凡事看到大山、小山、沙堆、隆起的草地等能稍微堆积起来形成差不多的类似锥体的,我通通都能脑补出在它地下发生的奇幻故事。当然,通常情况下,草地下不是下水道就是化粪池,应该没人敢惹!🙊
在调查思考后,就有了以下的地下车库设计初体验。
第一章 概况
城市汽车的数量急剧增长,我校校园内频繁的机动车辆出入使交通管理与安全问题更为突出。(尤其是那些迪拜、巴基斯坦、津巴布韦还有埃塞俄比亚高原等等地方的国际友人们总爱骑着摩托飞驰而过顺便和你你say hello以示友好🙈)
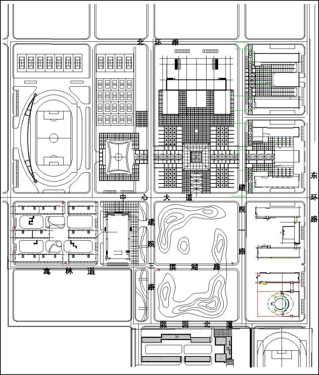
1.1校园功能分区分布状况
在学校先做个小调查,看看在那个地方设计地下车库最方便师生出行。
1.2校园道路、交通概况
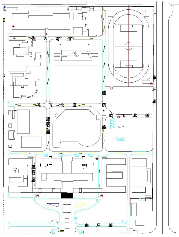
校园的主要道路分为环路、纵路和横道三大类别。
老校区
新校区
其中,环路包括:东环路、南环路、西环路、北环路;纵路包括:建园一路、建园二路、建园三路、建园四路;横道包括:广场北道、中心大道、滨湖道、滨湖西道、煦园北道、煦园南道、鸣飞北道、鸣飞南道。
学校目前一共有2个大门出入口,一个是学校的正门(南门),另一个则是西门,以南门进出入车辆为主,两个车辆入口将南侧津静公路和西侧海泰南北大街驶来的车辆引入校园,以公用车辆和教师的私家车为主。然而我校的教师办公地点以现代教育中心和各学院院楼为主,导致教师办公区与学生们的学习区域产生了交集,很容易造成巨大的安全隐患。
纵横交通的道路呈网格状分布,车辆通行量较大,在早上7:45——8:30是人流和车流的通行高峰时段,多为去上课的学生们和上班的教师们,中午11:30——13:00为人流的通行高峰时段,多为下课去食堂的教师和学生们,下午17:00——19:00为人、车流的通行高峰时段,多为下班的教师们和下课回宿舍的学生们。学生们的主要交通方式为步行和骑自行车,个别的同学使用小轿车,教职工的主要通行方式为轿车和骑自行车。车辆的主要行驶道路为建园一路、建园三路、东环路等。
第二章 校园内停车调查
2.1停车现状与分析
【碎碎念】
调查的时候真的很冷啊,天寒地冻的11月,妖风肆虐的11月,靠羽绒服续命的11月!
学校的主要停车地点有现代教育中心周围、东环路两侧、建园一路两侧、新食堂门前、新校区宿舍楼前道路两侧。
通过调查了解学校机动车停车点的分布以及停车泊位的数量、平均停放时间、停车周转率等停车特征指数,记录车辆的数量、停车时间段、停放位置等。主要分为新校区和老校区。目前学校停车泊位布置数如下:
停车泊位分布表
<class="md-table-fig">
| 位置分布 | 微(小)型车 | 其他车 | 停车形式 |
|---|---|---|---|
| 图书馆前 | 5 | 0 | 一字型 |
| 行知楼左侧 | 35 | 6 | 非字型 |
| 行知楼右侧 | 31 | 5 | 一字、非字型 |
| 结构工程实验中心前 | 20 | 0 | 一字、非字型 |
| 东西配周围 | 20 | 2 | 一字型 |
| 鸣飞堂前 | 4 | 0 | 一字型 |
| 总计 | 115 | 13 | 一字型 |
停车泊位分布雷达图
校园机动车停放调查表
<class="md-table-fig">
| 数量 地点 | 时间 | |||
|---|---|---|---|---|
| 7:00~10:00 | 10:00~13:00 | 13:00~16:00 | 16:00~19:00 | |
| 图书馆前 | 4 | 5 | 5 | 0 |
| 行知楼左侧 | 47 | 38 | 41 | 14 |
| 行知楼右侧 | 40 | 43 | 36 | 11 |
| 结构工程实验中心前 | 16 | 27 | 20 | 3 |
| 东西配周围 | 14 | 22 | 22 | 2 |
| 鸣飞堂前 | 2 | 7 | 4 | 2 |
| 总计 | 123 | 171 | 128 | 32 |
校园机动车停放折线图
2.2数据分析
由以上图表停车泊位分布雷达图可以看出,行知楼(主楼)附近的机动车停车泊位较多,这是因为主楼是同学和老师上课的主要地方,第一食堂和教学实验室都在主楼附近,所以有很多的进出车辆在这范围内活动,继而出现了车辆占道停靠的现象,让校园内本来就不宽敞的道路显得更加拥挤,给校园交通道路的通行带来了不小的压力。
主楼前虽然有大量的位置,但所有车辆都停放在现教前将造成学生上课不便,校内停车太混乱等问题,如果都乱停的话也会影响校风,给外界带来不好的影响。目前学校内多为地面停车设施,伴随学校的发展地面资源将日益紧张,地下停车设施规划是校园停车设施建设的发展必然,地下停车场的设计是城市地下空间利用的重要组成部分。交通用地将占用过多地面资源,使学校绿化面积减少。虽然有两个地下停车库,但不能解决日益增长的停车需求。所以发展地下静态交通,开拓地下空间成为必然的发展趋势。道路路边停车,造成道路宽度减小,上下课期间行车对学生的生命安全造成了一定的影响。校园停车设施规划的滞后必将造成校园的交通问题。伴随学校的发展,地面资源将日益紧张,地下停车设施是校园停车设施建设的发展必然,做好静态交通设施规划是提升交通设施服务质量,保障学生安全、净化校园环境。所以我利用自己所学的知识,解决校内停车问题(以办公教学区单建式微型客车为例),设计地下停车场,用于解决校内日益拥堵的交通问题。
【碎碎念】
第二章就在这儿暂时结束,现在我想给大家讲一个故事。从前有座山,山里有座庙,庙里个老和尚在给小和尚讲故事,他说:从前有个小孩,他要上山去当个小和尚,可是老和尚不肯收他,因为他一瞧这儿粉雕玉琢的小孩,一看就是不能轻易断了红尘的主儿,收了他当小和尚,怪累的。小孩儿不肯了,撒泼似的不肯下山,非要留在山上当个小和尚,老和尚就对他说:静,静,静。小孩愣住了,不解遂问老和尚他是何意,老和尚说:下一篇steem告诉你。
Posted from Steem中文社区 : http://cnstm.org/blog/2018/12/20/%e5%8f%97%e3%80%8a%e7%9b%97%e5%a2%93%e7%ac%94%e8%ae%b0%e3%80%8b%e5%90%af%e8%bf%aa%e7%9a%84%e5%9c%b0%e4%b8%8b%e8%bd%a6%e5%ba%93%e8%ae%be%e8%ae%a1%e5%88%9d%e5%b0%9d%e8%af%951/





高大上!
Posted using Partiko iOS
但好像没啥点赞(哭嘤嘤~)
Posted using Partiko Android
This post has been voted on by the SteemSTEM curation team and voting trail in collaboration with @curie.
If you appreciate the work we are doing then consider voting both projects for witness by selecting stem.witness and curie!
For additional information please join us on the SteemSTEM discord and to get to know the rest of the community!
厲害了
Posted using Partiko Android
谢谢支持!
Posted using Partiko Android
Congratulations @chloe1! You have completed the following achievement on the Steem blockchain and have been rewarded with new badge(s) :
Click here to view your Board of Honor
If you no longer want to receive notifications, reply to this comment with the word
STOPCongratulations @chloe1!
Your post was mentioned in the Steem Hit Parade for newcomers in the following categories:
I also upvoted your post to increase its reward
If you like my work to promote newcomers and give them more visibility on the Steem blockchain, consider to vote for my witness!
Congratulations @chloe1! You have completed the following achievement on the Steem blockchain and have been rewarded with new badge(s) :
Click here to view your Board
If you no longer want to receive notifications, reply to this comment with the word
STOPDo not miss the last post from @steemitboard:
Congratulations @chloe1! You have completed the following achievement on the Steem blockchain and have been rewarded with new badge(s) :
Click here to view your Board
If you no longer want to receive notifications, reply to this comment with the word
STOPDo not miss the last post from @steemitboard:
感觉这个复杂化的东东 厉害呀亲👍👍
Posted using Partiko Android
谢谢支持